Люк под плитку Шагма для плитки 600*500 (требуемый размер проема 610*535, размер люка 560*533) в Перми










Стандартные люки входят в складскую программу и, как правило, имеются в наличии на нашем складе.
В таблице размеров такие люки выделены оранжевым цветом.
Данные люки подлежат обмену и возврату и не требуют предоплаты.
Оплатить стандартный люк можно следующими способами:
- Наличными или картой в нашем офисе при самовывозе
- Наличными или картой водителю-экспедитору
- Безналичным расчетом
- Онлайн на сайте через защищенное соединение
Люк под плитку Шагма
| Товар |
|---|
| Люк под плитку Шагма 270*525, для плитки(требуемый размер проема 280*560, размер люка 230*558) |
| Эффект невидимки | Уплотнитель | Метод открывания | Требуемый размер проёма | Размер люка | Особенности | ||
|---|---|---|---|---|---|---|---|
| Ширина (мм) | Высота (мм) | Глубина (мм) | Глубина (мм) | ||||
| Максимальный | Нет | Нажатием, Присоской | 270 | 525 | 70 | 70 | Очень легкое открывание, Большая грузоподъёмность |
| Эффект невидимки | Уплотнитель | Метод открывания | Требуемый размер проёма | Размер люка | Особенности | ||
|---|---|---|---|---|---|---|---|
| Ширина (мм) | Высота (мм) | Глубина (мм) | Глубина (мм) | ||||
| Максимальный | Нет | Нажатием, Присоской | 270 | 525 | 70 | 70 | Очень легкое открывание, Большая грузоподъёмность |
| Цена | |
|---|---|
| Розничная цена | Цена по распродаже |
| 23 817 | 19 000 |
Общие параметры
Очень легкое открывание
Нажатием
Ограничительные уголки;
Магнит неодимовый;
Замок
В упаковке: 10.1 кг
Размеры
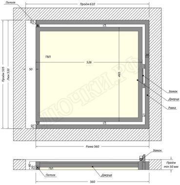
Высота: 500 мм
Высота: 535 мм
Высота: 533 мм;
Глубина: 70 мм
Высота: 465 мм
До: 700 * 530 (ШД * ВД)
Погрешность при производстве может составлять +- 2 мм.
Производитель на свое усмотрение и без дополнительных уведомлений может менять комплектацию, внешний вид и технические характеристики модели.
Глубина рамы люка 40 мм, соответственно необходимо делать каркас из профиля не меньшей глубины. Если хочется "кататься" на дверце, то однозначно крепеж должен быть в кирпичную или монолитную стену и анкерами.
https://www.luchki.ru/catalog/luki_pod_plitku/shagma/500__1000
Услуги замера и монтажа временно не предоставляются
Приносим извинения за возможные неудобства
Стоимость работ по монтажу
| Стоимость работ по монтажу люков | ||||
|---|---|---|---|---|
| Модель | Стоимость работ | Стоимость материала для монтажа | ||
| Напольный | ||||
| Съемный | от 8000 | от 2000 | ||
| На петле | ||||
| Настенный | ||||
| Металлический сантехнический размеры от 200 до 500мм | от 500 | от 200 | ||
| Металлический сантехнический размеры от 500 до 1000мм | от 1000 | от 500 | ||
| Под плитку размеры от 200 до 500 мм | от 2500 | от 500 | ||
| Под плитку размеры от 500 до 1000 мм | от 3500 | от 1000 | ||
| Под покраску размеры от 200 до 500 мм | от 2500 | от 500 | ||
| Под покраску размеры от 500 до 1000 мм | от 3500 | от 1000 | ||
| Потолочный | ||||
| Под покраску от 200 до 500 мм | от 2500 | от 500 | ||
| Под покраску от 500 до 1000 мм | от 3000 | от 1000 | ||
| Стоимость работ по установке чердачных лестниц | ||||
| Тип работ | Стоимость работ | |||
| Деревянные чердачные лестницы, установка в готовый проем | 5000 ₽ | |||
| Металлические чердачные лестницы, установка в готовый проем | 7500 ₽ | |||
| Подготовка проема под установку лестнице (в зависимости от сложности работ, кроме бетонных проемов) | от 2000 до 5000 ₽ | |||
| Подготовка проема в бетонном перекрытии | от 5000 | |||
| Стоимость услуг по установке окон-люков | ||||
| Тип работ | Стоимость работ | |||
| Установка окон-люков в готовый проем без подведения кровельного покрытия | 5000 ₽ | |||
| Установка окон-люков в готовый проем без подведения кровельного покрытия с переносом стропильной системы | 8000 ₽ | |||
| Установка окон-люков в готовый кровельный пирог (Битумная, натуральная, металлочерепица) | 10000 ₽ | |||
| Установка окон-люков в готовый кровельный пирог с переносом стропильной системы (Битумная, натуральная, металлочерепица) | 13000 ₽ | |||
| Установка окон-люков в фальцевую кровлю (Клик фальц, двойной стоящий фальц, оцинковка и т.п.) | от 18000 ₽ | |||
В стоимость работ не входит:
- Укладка плитки;
- Шпатлевка;
- Подготовка проема;
- Укрепление проема;
- Утепление люка.
ВНИМАНИЕ! Дополнение по установке и замеру чердачных лестниц: Выезд на замер осуществляется платно, до первого малого бетонного кольца 1 500 ₽, от малого и далее по Московской области 2 000 ₽.
* Стоимость монтажа и установочных работ может отличаться от прайса. Подробную информацию уточняйте у менеджеров магазина.
* Расходный материал при установке чердачных лестниц в стоимость монтажа не входит и расчитывается индивидуально.










+7 (977) 090-10-90





















































































































































































